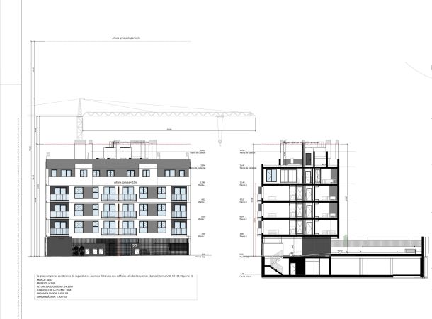
Obra en Edificios Residenciales CONSTRUCCIÓN DE EDIFICIO RESIDENCIAL EN CALLE ANTONIO GONZÁLEZ PORRAS 27, MADRID
octubre 17, 2025 | Noticias EnerPHit: la clave para rehabilitar edificios antiguos con eficiencia y confort
septiembre 17, 2025 | Noticias Reformar como si fueras a vivir en ella: el error más caro de los inversores novatos
agosto 28, 2025 | Noticias CONSTRUCCIÓN REGENERATIVA: CUANDO LA ARQUITECTURA NO SOLO REDUCE, SINO TAMBIÉN REPARA
CONSTRUCCIÓN DE EDIFICIO RESIDENCIAL ENTRE CALLE BANDERA 13 Y CADETE JULIO LLOMPART 14, EN MADRID Ver Obra