Ir al contenido principal

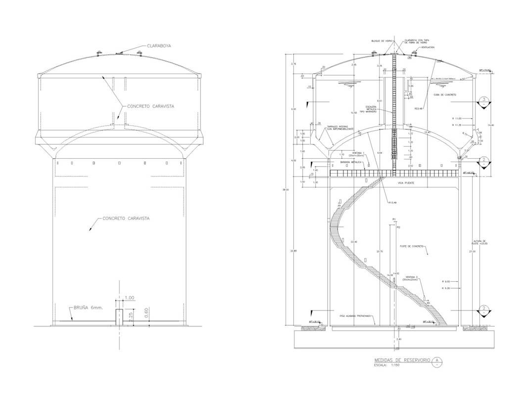
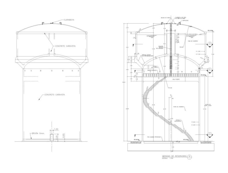
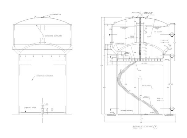
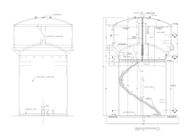
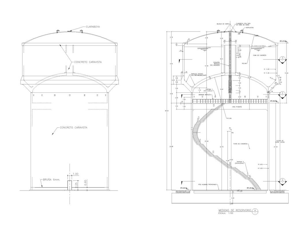
RESERVORIO 3.000 M3 EN MBPP

CARACTERÍSTICAS

  • TIPOLOGÍA
    ESTRUCTURA DE CONCRETO ARMADO
  • SUPERFICIE TERRENO
    500,00 m2
  • COSTE CONSTRUCCIÓN
    S/. 7.228.000
  • PROMUEVE
    IMP
  • CONTRUYE
    CMP