CONSTRUCCIÓN DE EDIFICIO RESIDENCIAL EN CALLE ANTONIO GONZÁLEZ PORRAS 27, MADRID
CARACTERÍSTICAS
-
SITUACIÓNMadrid
-
AÑO2024-2025
-
LOCALIZACIÓNCalle Antonio Gonzalez Porras 27, Madrid
LOCALIZACIÓN
Construcción de Edificio Residencial en Madrid: Un Proyecto Moderno y Eficiente
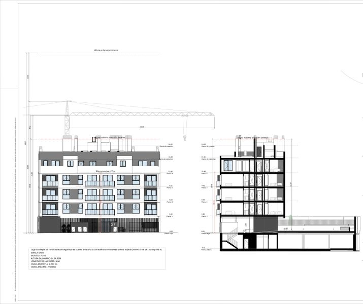
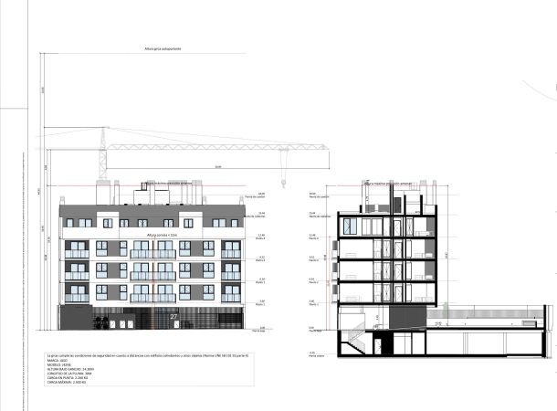
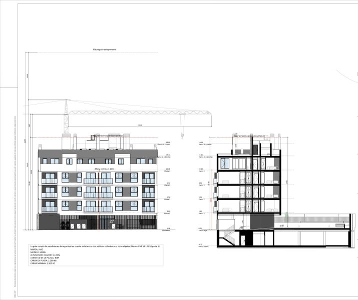
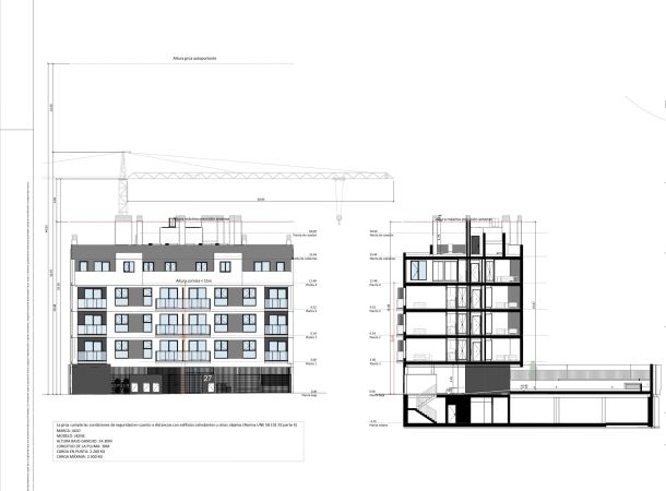
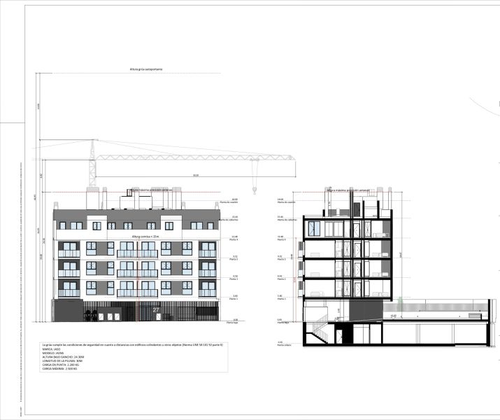
El proyecto consiste en la construcción de un edificio residencial en Madrid, que se desarrolla en una planta baja más tres alturas y un ático retranqueado. Este edificio se eleva sobre la urbanización, donde se ha proyectado un espacio libre privado común y una planta baja porticada, creando un entorno cómodo y accesible para los residentes.
Distribución del Edificio Residencial en Madrid
El edificio cuenta con un núcleo de comunicación vertical que incluye una escalera y un ascensor, conectando todas las plantas y dando acceso a 4 viviendas en plantas 1ª, 2ª y 3ª y 3 viviendas en la planta ático. Su diseño eficiente y moderno asegura la comodidad de los habitantes.
Planta Baja y Zonas Comunes
En la planta baja, además del espacio libre privado, se incluyen:
-
Cuartos para instalaciones como la conserjería, el cuarto de bicicletas y el centro de transformación.
-
Zonas recreativas con piscina y áreas verdes.
-
Aparcamiento con 6 plazas para automóviles y 2 plazas para motocicletas. Además, se accede al aparcamiento privado subterráneo y a las plazas de aparcamiento en superficie desde la planta baja.
Accesos al Aparcamiento
El aparcamiento privado se proyecta en una única planta sótano, alineado con la superficie sobre rasante de los edificios, y accesible desde un vial en rampa descubierto. También se dispone de acceso al aparcamiento en superficie desde la planta baja porticada del edificio.
Calidades y Detalles Técnicos del Edificio Residencial en Madrid
El edificio contará con:
-
Cimentación mediante pantalla de pilotes en el perímetro de la parcela y zapatas aisladas.
-
Estructura portante con pilares de hormigón y forjados bidireccionales.
-
Cerramientos de fachada a base de ladrillo acústico tipo satebrick, revestimiento exterior de monocapa en varios colores y aislamiento interior.
-
Divisiones interiores con tabiques cerámicos gran formato y medianeras entre viviendas con ladrillo acústico.
-
Carpinterías exteriores en PVC y interiores en madera lacada.
-
Cubiertas planas transitables en zonas vivideras y terminadas con gravilla en las azoteas, y cubierta ajardinada en planta baja sobre garaje subterráneo.
-
Revestimientos cerámicos en suelos y paredes de cuartos húmedos, y pinturas plásticas en el resto de las estancias.
-
Instalaciones estándar para viviendas, incluyendo un sistema de climatización individual con aerotermia.
Este proyecto de construcción de edificio residencial en Madrid se destaca por sus materiales de alta calidad y su diseño eficiente que favorece la sostenibilidad y el confort de los residentes.
Para más detalles, contacta con Brillas Agustí.






